Bản vẽ nhà xưởng
Bản vẽ nhà xưởng là yếu tố quan trọng trong quá trình thiết kế và xây dựng một nhà máy, khu công nghiệp hay nhà xưởng sản xuất. Nó giúp đảm bảo rằng công trình được xây dựng theo đúng kế hoạch, tối ưu hóa công năng, đáp ứng yêu cầu sản xuất và bảo đảm an toàn.
THIẾT KẾ THI CÔNG NHÀ XƯỞNG, NHÀ MÁY UY TÍN
BẠN ĐANG CẦN CHỌN 1 NHÀ THẦU THIẾT KẾ, THI CÔNG NHÀ XƯỞNG CÔNG NGHIỆP VÀ ĐỦ HIỂU BIẾT VỀ PHÁP LÝ ?
HÃY THAM KHẢO BÀI VIẾT NÀY VÀ CHỌN VINACON NHƯ 1 NGƯỜI BẠN ĐỒNG HÀNH CHO NHÀ MÁY CỦA BẠN
VINACON là công ty có năng lực, trách nhiệm và uy tín về thiết kế nhà xưởng , thi công nhà xưởng và hỗ trợ pháp lý cho bạn tại Việt Nam. Đội ngũ kiến trúc sư, kỹ sư của chúng tôi có mặt tại tất cả các tỉnh phía Bắc như Hà Nội, Bắc Ninh, Bắc Giang, Hải phòng, Quảng Ninh, Vĩnh Phúc, Phú Thọ, Hà Nam, Nam Định.. phía Nam như TP Hồ Chí Minh, Bình Dương, Đồng Nai, Long An, Bà Rịa Vũng Tàu. Miền Trung Như Đà Nẵng, Nghệ An, Thanh Hóa, Hà Tĩnh
VINACON xin chia sẻ với các bạn một số vấn đề trong thi công móng của nhà xưởng giúp đảm bảo chất lượng công trình trong suốt quá trình sử dụng.

1. Tại sao bản vẽ nhà xưởng quan trọng?
Bản vẽ nhà xưởng là cơ sở cho việc lập kế hoạch, triển khai thi công và quản lý chi phí. Đây là tài liệu giúp đội ngũ thiết kế, thi công và chủ đầu tư hiểu rõ từng phần của công trình, từ đó hạn chế rủi ro, sai sót và phát sinh không cần thiết.
- Đảm bảo an toàn: Bản vẽ giúp dự đoán và phòng ngừa các nguy cơ an toàn, đặc biệt là trong các nhà máy sản xuất có nhiều máy móc, thiết bị nặng.
- Tiết kiệm chi phí và tối ưu thời gian thi công: Thông qua bản vẽ chi tiết, các nhà thầu có thể lập kế hoạch thi công cụ thể, giảm thiểu chi phí do sửa đổi và điều chỉnh không cần thiết.
- Đảm bảo công năng sử dụng: Đặc biệt với các nhà xưởng sản xuất, bố trí mặt bằng cần tối ưu hóa để quy trình sản xuất diễn ra suôn sẻ và hiệu quả.
2. Các loại bản vẽ nhà xưởng cơ bản
Trong quá trình thiết kế nhà xưởng, các loại bản vẽ cơ bản bao gồm:
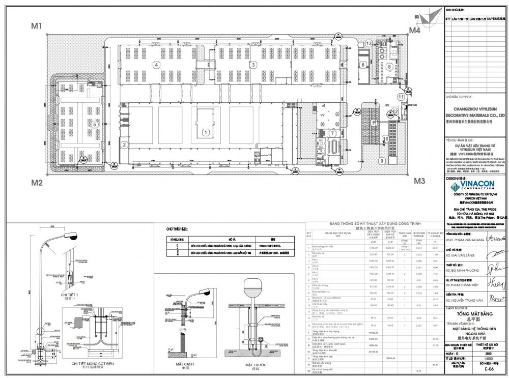
Bản vẽ tổng mặt bằng quy hoạch 1/500
Bản vẽ tổng quát mặt bằng tỷ lệ 1/500 là một loại bản vẽ quy hoạch được sử dụng trong thiết kế nhà xưởng và xây dựng công trình để thể hiện toàn bộ mặt bằng của một khu đất hoặc công trình với tỷ lệ 1:500. Đây là một tỷ lệ phổ biến trong các bản vẽ quy hoạch tổng thể, được kiến trúc sư thiết kế nhầm cung cấp một cái nhìn rõ ràng và chi tiết về toàn bộ khu vực được quy hoạch, nhưng vẫn đủ nhỏ gọn để dễ dàng quản lý và sử dụng.

– Quy hoạch chi tiết: Giúp các nhà quy hoạch và kiến trúc sư đưa ra các quyết định chính xác về bố trí tổng thể khu đất và các công trình trên đó.
– Xin giấy phép xây dựng: Đây là một trong những tài liệu bắt buộc trong hồ sơ xin giấy phép xây dựng, giúp cơ quan chức năng kiểm tra và phê duyệt dự án.
– Quản lý và giám sát thi công: Cung cấp thông tin chi tiết cho các nhà thầu và giám sát viên trong quá trình thi công, đảm bảo mọi hạng mục được thực hiện đúng theo kế hoạch.
– Định hướng phát triển: Giúp xác định các hướng phát triển hợp lý và bền vững cho khu vực quy hoạch.
Nhờ bản vẽ tổng quát mặt bằng 1/500, các bên liên quan có thể có cái nhìn toàn diện và chi tiết về dự án, từ đó đảm bảo tính khả thi và hiệu quả của việc thực hiện bản vẽ thiết kế nhà xưởng và xây dựng công trình.
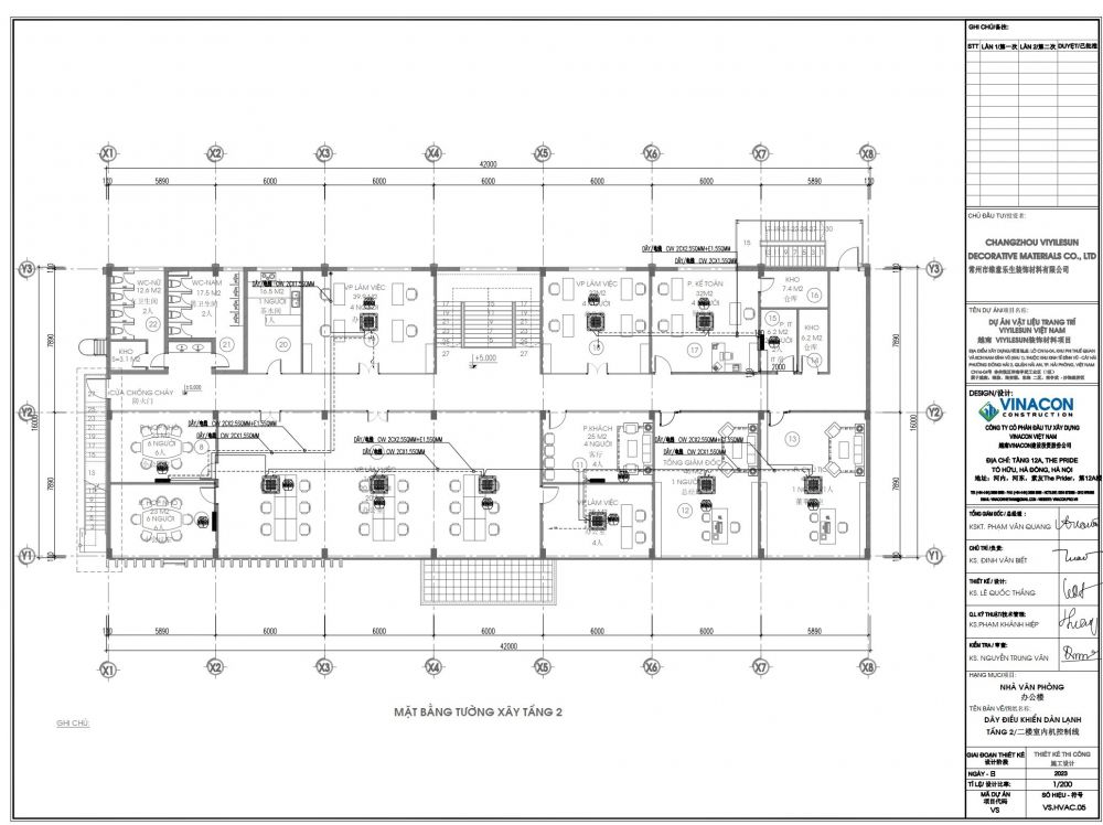
Bản vẽ kiến trúc
Bản vẽ kiến trúc bao gồm các bản vẽ tổng thể và chi tiết về cách phân bố các khu vực trong công trình. Bản vẽ này mô tả quy hoạch kiến trúc trên mặt bằng, bao gồm cả mặt đứng và mặt cắt ngang.

Bản vẽ mặt bằng phải thể hiện được chiều cao, chiều rộng và tỷ lệ phân chia các khu vực trong nhà xưởng. Mặt đứng cung cấp hình dạng tổng quát của công trình, trong khi mặt cắt ngang giúp nhìn rõ các chi tiết và cấu trúc bên trong thiết kế nhà xưởng tiền chế mà bạn dự định xây dựng.
Nội dung của bản vẽ kiến trúc
Bản vẽ mặt bằng:
– Thể hiện bố cục các tầng của công trình.
– Bao gồm các phòng, cửa ra vào, cửa sổ, và các không gian chức năng.
– Xác định kích thước và tỷ lệ của các khu vực.
Bản vẽ mặt đứng:
– Hiển thị các mặt ngoài của công trình từ các hướng nhìn khác nhau.
– Thể hiện chiều cao, cửa sổ, cửa ra vào, và các chi tiết ngoại thất.
Bản vẽ mặt cắt:
– Cắt ngang qua công trình để hiển thị cấu trúc bên trong.
– Giúp hiểu rõ hơn về cách bố trí không gian và kết cấu.
Tầm quan trọng của bản vẽ kiến trúc
Đảm bảo tính khả thi và hiệu quả của dự án: Giúp các bên liên quan có cái nhìn toàn diện và chi tiết về dự án.
Tiết kiệm thời gian và chi phí: Giảm thiểu sai sót trong quá trình thi công, từ đó tiết kiệm thời gian và chi phí.
Tăng tính thẩm mỹ và chức năng của công trình: Giúp tạo ra các công trình không chỉ đẹp mắt mà còn đáp ứng đầy đủ các yêu cầu về chức năng và tiện nghi.
Nhờ vào sự chi tiết và chính xác của bản vẽ kiến trúc, việc thực hiện các dự án xây dựng trở nên hiệu quả và an toàn hơn, đồng thời đảm bảo rằng ý tưởng trong bản vẽ thiết kế nhà xưởng của kiến trúc sư được hiện thực hóa một cách trọn vẹn.
Bản vẽ kết cấu thép
Bản vẽ kết cấu thép là một loại bản vẽ kỹ thuật đặc biệt, được sử dụng để thiết kế nhà xưởng và xây dựng các công trình sử dụng kết cấu thép như nhà xưởng, nhà công nghiệp, cầu, tòa nhà cao tầng và các công trình hạ tầng khác. Đây là công cụ quan trọng giúp các kỹ sư, kiến trúc sư và nhà thầu hiểu rõ về cách thức bố trí và lắp ráp các cấu kiện thép trong công trình.

Bản vẽ kết cấu thép bao gồm các chi tiết mặt bằng và các vị trí được định vị một cách chính xác, nhằm thể hiện toàn bộ cấu trúc thép của công trình. Bản vẽ thiết kế nhà xưởngbao gồm chi tiết về móng, mặt bằng cột, dầm, kèo, cũng như các cột thép và thanh xà ngang cần sử dụng. Toàn bộ phần khung kết cấu thép, từ móng cho đến các cấu kiện chính như cột và dầm, đều được thể hiện chi tiết trên bản vẽ này. Điều này giúp đảm bảo tính chính xác và hiệu quả trong quá trình thiết kế, sản xuất và thi công công trình.
Bản vẽ cơ điện
Bản vẽ cơ điện là một loại bản vẽ kỹ thuật chuyên dụng trong thiết kế nhà xưởng, dùng để thể hiện chi tiết các hệ thống cơ điện của một công trình. Hệ thống cơ điện bao gồm các thành phần liên quan đến điện, cơ khí, thông gió và điều hòa không khí, hệ thống cấp thoát nước và hệ thống phòng cháy chữa cháy.

Bản vẽ cơ điện là công cụ quan trọng giúp các kỹ sư, nhà thầu và các bên liên quan khác hiểu rõ và thực hiện đúng các yêu cầu kỹ thuật trong thiết kế và thi công nhà xưởng.
Nội dung của bản vẽ cơ điện
Bản vẽ hệ thống điện:
– Sơ đồ mạch điện: Hiển thị mạch điện chính, các đường dây dẫn điện, các bảng điện, ổ cắm, công tắc và thiết bị điện khác.
– Sơ đồ điều khiển và bảo vệ: Bao gồm các thiết bị điều khiển, relay, bộ ngắt mạch và các hệ thống bảo vệ điện.
– Sơ đồ chiếu sáng: Thể hiện vị trí và loại đèn chiếu sáng, hệ thống dây dẫn và công tắc điều khiển.
Bản vẽ hệ thống cấp thoát nước:
– Sơ đồ cấp nước: Hiển thị vị trí các đường ống cấp nước, bể chứa nước, van và thiết bị cấp nước.
– Sơ đồ thoát nước: Thể hiện hệ thống thoát nước, ống thoát nước mưa, ống thoát nước thải, bể phốt và các điểm xả.
Bản vẽ hệ thống HVAC:
– Sơ đồ hệ thống sưởi: Bao gồm các lò sưởi, đường ống dẫn nhiệt, van và bộ điều khiển nhiệt độ.
– Sơ đồ hệ thống thông gió: Thể hiện vị trí các quạt thông gió, ống dẫn khí và cửa thông gió.
– Sơ đồ hệ thống điều hòa không khí: Hiển thị các máy điều hòa, ống dẫn lạnh, van và các thiết bị điều khiển nhiệt độ.

Bản vẽ hệ thống phòng cháy chữa cháy:
– Sơ đồ hệ thống báo cháy: Bao gồm các cảm biến khói, báo động, tủ điều khiển và dây dẫn.
– Sơ đồ hệ thống chữa cháy: Thể hiện các bình chữa cháy, hệ thống phun nước tự động (sprinkler), ống dẫn nước chữa cháy và các van điều khiển.
Tầm quan trọng của bản vẽ cơ điện
– Đảm bảo tính chính xác và hiệu quả: Giúp các bên liên quan hiểu rõ và thực hiện đúng các yêu cầu kỹ thuật, giảm thiểu sai sót trong quá trình thi công.
– Tăng tính an toàn: Giúp đảm bảo các hệ thống cơ điện được lắp đặt và vận hành an toàn.
– Tiết kiệm thời gian và chi phí: Giảm thiểu các vấn đề phát sinh trong quá trình thi công và bảo trì, từ đó tiết kiệm thời gian và chi phí.
– Đảm bảo chất lượng công trình: Giúp các hệ thống cơ điện hoạt động hiệu quả và bền vững, đảm bảo chất lượng tổng thể của công trình.
Bản vẽ cơ điện là một phần không thể thiếu trong quá trình thiết kế, thi công và bảo trì các công trình xây dựng, đóng vai trò quan trọng trong việc đảm bảo tính hiệu quả và an toàn của các hệ thống cơ điện.
3. Quy trình lập bản vẽ nhà xưởng
Quá trình lập bản vẽ nhà xưởng đòi hỏi sự hợp tác giữa nhiều bộ phận từ kiến trúc sư, kỹ sư xây dựng, đến các chuyên gia kỹ thuật khác. Quy trình cơ bản bao gồm:
- Khảo sát và phân tích yêu cầu: Lắng nghe nhu cầu của khách hàng, phân tích các yếu tố địa hình, thời tiết, yêu cầu công năng và công suất sản xuất.
- Thiết kế sơ bộ: Dựa trên yêu cầu, kỹ sư sẽ lên bản vẽ sơ bộ để định hình mặt bằng tổng thể và các yếu tố kiến trúc, kết cấu chính.
- Thiết kế chi tiết: Hoàn thiện bản vẽ chi tiết cho từng phần từ kiến trúc, kết cấu đến hệ thống kỹ thuật.
- Duyệt bản vẽ và xin phép xây dựng: Sau khi hoàn thiện, bản vẽ sẽ được trình duyệt và xin phép xây dựng trước khi triển khai thi công.
4. Những yếu tố cần lưu ý khi thiết kế bản vẽ nhà xưởng
- Tối ưu hóa không gian sản xuất: Đảm bảo các khu vực sản xuất, kho và văn phòng được bố trí hợp lý để tối ưu hóa quy trình làm việc.
- Đảm bảo thông thoáng và ánh sáng: Nhà xưởng cần được thiết kế với hệ thống quạt thông gió, cửa sổ hoặc hệ thống chiếu sáng tự nhiên để tạo môi trường làm việc an toàn, thoải mái.
- Đáp ứng tiêu chuẩn và quy định an toàn: Đặc biệt là các tiêu chuẩn về an toàn cháy nổ, hệ thống thoát hiểm và yêu cầu về vệ sinh môi trường.
5. Lợi ích của việc sử dụng bản vẽ nhà xưởng chuyên nghiệp
- Giúp kiểm soát chi phí tốt hơn: Bản vẽ rõ ràng giúp kiểm soát và dự toán chi phí một cách chính xác, từ đó hạn chế phát sinh chi phí ngoài dự kiến.
- Đảm bảo tiến độ thi công: Khi có bản vẽ chi tiết, nhà thầu và các đội thi công dễ dàng phối hợp hơn, rút ngắn thời gian thi công và tránh sai sót.
- Nâng cao tính thẩm mỹ và chuyên nghiệp: Bản vẽ thiết kế hợp lý giúp nhà xưởng đạt được sự hài hòa về thẩm mỹ và thể hiện tính chuyên nghiệp trong xây dựng.
Trên đây là nội dung chính của bản vẽ nhà xưởng. Bạn đang cần đơn vị thiết kế bản vẽ nhà xưởng chuyên nghiệp hãy liên hệ ngay Vinacon để được tư vấn thiết kế thi công nhà xưởng trọn gói cho dự án .
📢 Bạn đang cần thiết kế, thi công hoặc tư vấn pháp lý cho nhà xưởng, nhà máy?
Hãy liên hệ ngay để được hỗ trợ chuyên nghiệp! Chúng tôi cam kết mang đến:
🎯 Giải pháp thiết kế tối ưu
✅ Phù hợp với yêu cầu sản xuất & kinh doanh
✅ Đảm bảo hiệu quả sử dụng lâu dài
🏗 Thi công chất lượng cao
✅ Tuân thủ tiêu chuẩn an toàn & kỹ thuật
✅ Hoàn thành đúng tiến độ
📜 Tư vấn pháp lý chuyên sâu
✅ Đảm bảo thủ tục pháp lý đầy đủ & chính xác
✅ Hỗ trợ toàn diện trong suốt quá trình xây dựng
📞 Liên hệ ngay để nhận tư vấn & báo giá miễn phí!
CÔNG TY CỔ PHẦN ĐẦU TƯ XÂY DỰNG VINACON VIỆT NAM
TƯ VẤN PHƯƠNG ÁN NHÀ XƯỞNG TỐI ƯU NHẤT CHO DỰ ÁN CỦA BẠN
Kỹ sư VINACON đề xuất phương án tối ưu chi phí, rút ngắn tiến độ và đảm bảo pháp lý 100% ngay từ bước thiết kế.
✔ Tiết kiệm 5–15% chi phí đầu tư tổng thể • Rút ngắn tiến độ 10–20 ngày • Đúng pháp lý: PCCC – GPXD – Môi trường

