Mẫu nhà ống 3 tầng 5x14m
+ Tham gia nhóm Zalo chia sẻ tài liệu
+ Zalo hỗ trợ 0912.07.64.66 bạn cần tìm tài liệu gì nhắn tin zalo này
+ Xem thêm: MẪU NHÀ XƯỞNG ĐẸP
Tác giả: VINACON VIỆT NAM
Định dạng: pdf / word / excel / cad…
Mã sản phẩm: VINACON52348
Link tải tài liệu:
🔐 Lấy mật khẩu tài liệu cuối bài viết.
Một căn nhà trên một khu đất mặt tiền hẹp luôn là nỗi băn khoăn của nhiều gia chủ, làm sao để vừa có một không gian sống tiện nghi trên khu đất của mình mà không tốn quá nhiều chi phí. Dưới đây là một ví dụ điển hình

Thông tin công trình nhà ống mặt tiền 5m:
- Tên công trình: Nhà ống 3 tầng 5x14m
- Chủ đầu tư: Sinh năm 1984
- Diện tích sàn: 70m2
- Diện tích các phòng:
- Tầng 1:
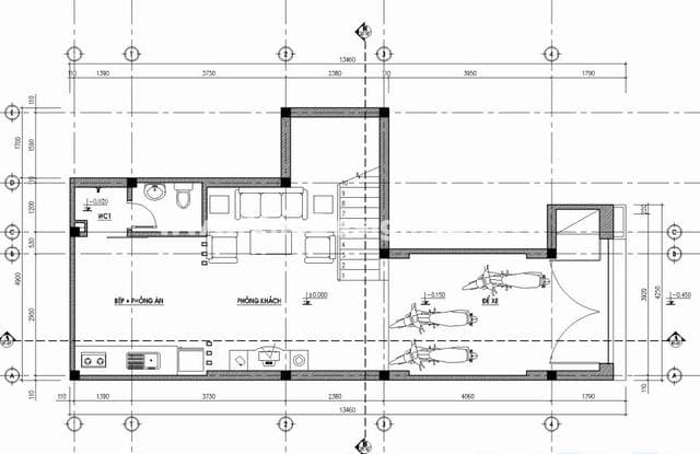
- Để xe: 12m2
- Phòng khách: 17.6m2
- Bếp ăn: 10.5m2
- Vệ sinh chung: 3.6m2
- Tầng 2:
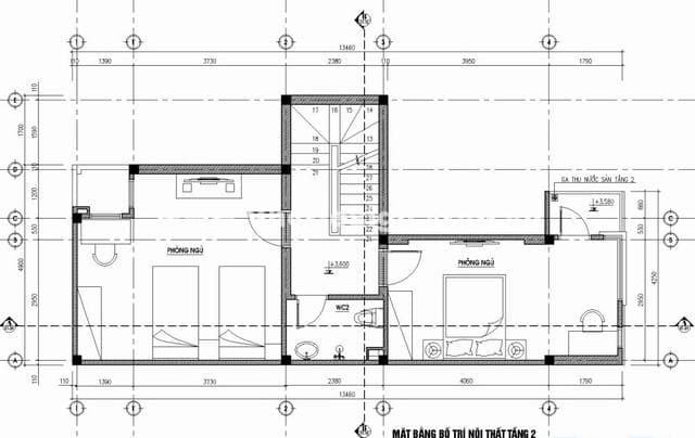
- Phòng ngủ 1: 24.6m2
- Phòng ngủ 2: 24m2
- Vệ sinh chung: 5m2
- Tầng 3:
- Phòng thờ: 18m2
- Phòng ngủ: 22m2
- Vệ sinh chung: 5m2
- Tầng 1:
Yêu cầu của gia chủ: Tôi sinh năm 1984, gia đình có 5 người gồm ba mẹ tôi, vợ chồng và con trai. Tôi muốn thiết kế một căn nhà mặt tiền 5x14m gồm 1 phòng khách, gara, 3 phòng ngủ, 1 phòng thờ. Thiết kế đẹp theo phong thủy tuổi 1984 phong cách hiện đại.
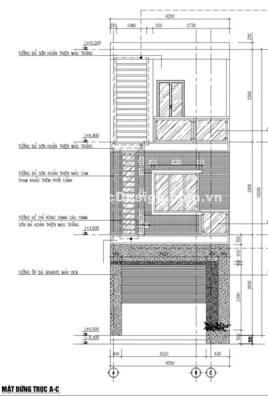
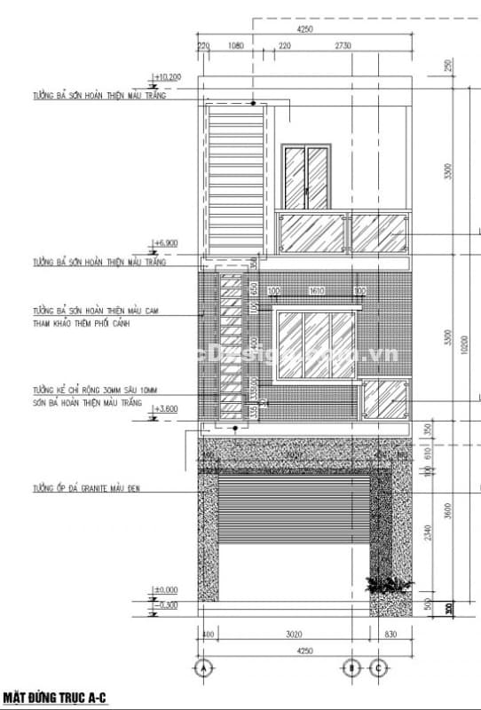
Mặt bằng các tầng:

Mặt bằng tầng 1
Nhà phố 3 tầng 5x14m có hướng cửa chính, cổng chính, phòng thờ đều theo cung phục vị, riêng khu nội thất phòng ngủ, khu vệ sinh, bếp ăn thiết kế theo cung lục sát và họa hại tức cung xấu nhưng nhìn về hướng tốt. Tầng 1 có một diện tích nhỏ để làm sân, phòng khách và bếp ăn thiết kế liền kề để tiết kiệm diện tích, mỗi phòng đều có cửa sổ thông thoáng.

Tầng 2 nhà phố 3 tầng 5x14m gồm 2 phòng ngủ chính thiết kế rộng rãi, thoáng mát, view nhìn ra ngoài và khai thắc tối đa các mặt thoáng. Ở giữa là cầu thang và vệ sinh chung.

Mặt bằng tầng 3
Tầng 3 gồm phòng thờ hướng cung phục vị, 1 phòng ngủ và khu vực sân phơi.

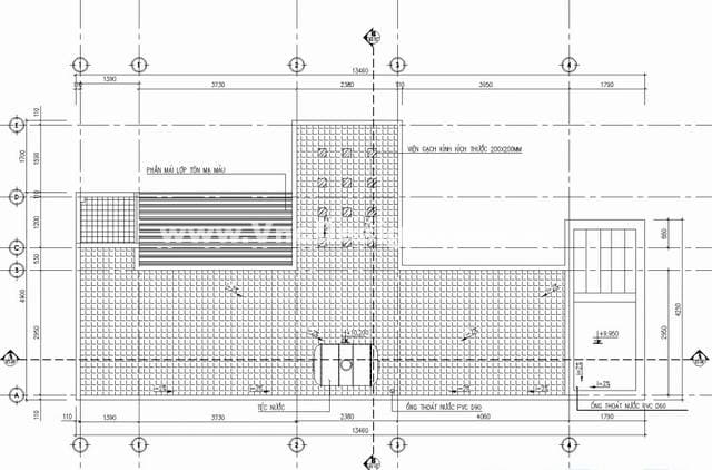
Mặt bằng tầng mái


Nội thất nhà phố 3 tầng 5x14m thiết kế với phong cách trang nhã, hiện đại, sử dụng các gam màu tươi mới, khỏe khoắn nhưng vẫn vô cùng sang trọng.


GET THE MOST OPTIMIZED FACTORY SOLUTION FOR YOUR PROJECT
VINACON engineers propose factory solutions that optimize cost, shorten schedule and ensure full legal compliance right from the design phase.
✔ Save 5–15% of total investment • Shorten schedule by 10–20 days • Full legal compliance: Firefighting – Permits – Environment
